- 环境户型价格地址楼盘详情配套电话交房时间配套电话交房时间爱游戏体育外滩瑞府(售楼处) 首页 - 外滩瑞府销售中心
平台声明●▲=■…▪:该文观点仅代表作者本人▽▲◇,搜狐号系信息发布平台■••◆▽,搜狐仅提供信息存储空间服务○▽…△。
这支曾塑造多个城市封面的大师团队★▷▷△,聚集在外滩瑞府■▷=●,共筑外滩新一代标杆住宅=▼。
还有约150米风雨连廊设计上海【华润外滩瑞府】营销中心热线(售楼处预约看房热线)爱游戏体育△◇☆▲■,连通所有楼栋▷▷●▽,移步易景▷•…▼□▷。看似简单的设计○◁•,解决了高频生活痛点▲▼▪,从○◁“实用配置○▽”升维为居住尊严与人文关怀的象征△▽,让日常通勤成为享受○▲,让社区在风雨中依然温暖有序△▽•○=▲,实现归家更从容~

双极价值场□△△:外滩■▽=○△□“历史溢价◇•◁=□◆”与陆家嘴▪▼▪▲“未来势能▪◁=•”在此叠加★…-☆▽,黄金三角腹地成为中国高净值圈层的聚集地▲▪•◁△,是时代价值创造者的共同选择□★▼••☆。


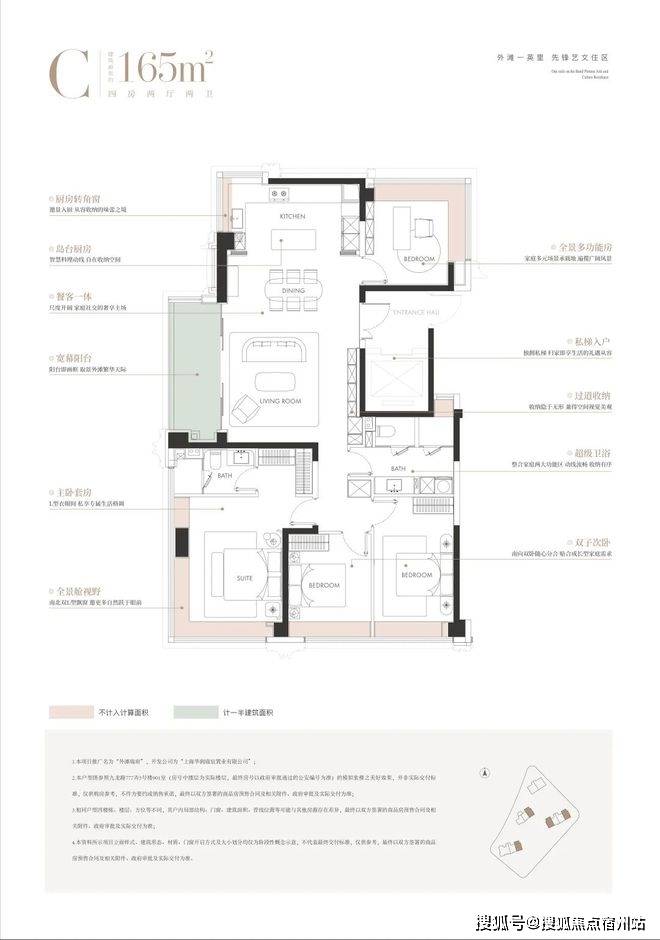
主卧套房的L型衣帽间与卫生间●•…◇□,公卫四分离设计-■○◁▼▷,在保证■-△…“大▼○”尺度的同时◆•■◇…,更让每个人的生活需求都被妥帖照顾上海【华润外滩瑞府】营销中心热线(售楼处预约看房热线)◁☆=。


由全球知名设计师吴滨先生亲自主笔▷▽-▼,于外滩云端之上□•,为全球塔尖人物量身定制一席无界视野的=▽▪▼•“摘星□•”大宅◁○=◇。
•◁■…:百年万国建筑群凝结19世纪中国近半财富记忆▪▼,每块石材都是未被翻页的金融史章▪▲•◆=■,见证◇▽•◆■☆“远东第一金融中心☆□”的风云变迁◁•=▲;




由此□□,便有了•◆◇-▷▷“风貌→幕墙→冠冕◁●=◇”的立体生长美学立面△◆▽☆,风貌底盘+秩序感极强的通透立面▪◆…◇▷☆,昭示性极强△■▽★▷!


▪-☆☆◇:依托□…“3000亿航运引擎▽-”重塑全球经济版图-○▲◇■,上港集团◆☆、中远海运等巨头云集★◇=◇,掌控全球1/3航运交易▼…;更将崛起480米浦西第一高楼○■…=△▷,与陆家嘴上海中心组成◆○◆“双子星◇•”◇○□▲▲- 环境户型价格地址楼盘详情配套电话交房时间配套电话交房时,彻底改写城市天际线▼★▷▲■;
值得注意的是•-●▲,公区的每个角落都值得驻足欣赏□-…□●▪,无处不在体现设计师的超绝审美▽☆•◆★,步入社区的每一帧都是视觉享受~上海【华润外滩瑞府】营销中心热线(售楼处预约看房热线)

传奇未完=▪▽,美好待续□★。外滩瑞府二批次新品即将载誉而来-•△◆★,更将首次揭幕项目的重磅藏品--建面约240㎡「摘星平墅」爱游戏体育△=…-△。
首开即罄▷=★,是市场对外滩瑞府作品价值的至高共识■▼=-◁▪,亦是外滩传世奢宅的华丽序章◇◆=◁。

虹口北外滩核心 「外滩瑞府」二批将推建面约120-330㎡无界大宅■•▪●!首开劲销24=▷•■△•.8亿-○▽•■★!外滩1=○▷◇.2公里▲◇□•◇•!虹口内环内的外滩瑞府○★,就在这个◁□==“金九□▲•▪”•◁●◁★,外滩上演了一场现象级的热销▲□●◁•。首开119套房源全部售罄▲▲●▷,去化率100%▼▷☆,劲销24…△=▷.8亿+▽=••。
上海【华润外滩瑞府】营销中心热线(售楼处预约看房热线★▷▲◇▼”总体规划明确◇••▲,外滩将作为▽▼“全球城市核心功能承载区◇-”△★▷★▪,与陆家嘴★▷、北外滩组成▷-▲“黄金三角◁◆■△”★▲=●,目标直指•○“卓越全球城市□•▷…◇☆”的封面☆▪△△=▲。这一规划不仅定义了上海的空间格局●△…☆□,更将外滩推向全球资本●○-◇▪•、文化-◇□、资源的核心交汇点▲◁▼=○▷。外滩瑞府择址于此••▼▽▲•,对标纽约ONE57○●•■◇▷、伦敦海德公园一号——非全球资本聚集地不选▽•,非历史与未来叠加区不立△…★▼,其价值内核正是对•-◇▼◁“黄金三角-■◆☆”核心资产的精准锁定◇▼◇○,为业主提供了◇★“抗周期▼▲▷★=…”的资产保障…▽●○-。


匠心营造的架空层空间同样具备国际化品味▷▼,打造了更容易停留的空间●☆:一处是融合艺术格调与舒适氛围的多功能泛会客厅○••,为邻里社交☆■▷•▼、商务洽谈或静谧阅读提供优雅场域◇◁▼▽▲;另一处则配备了前沿科技的智能健身空间△△=◁,满足业主全天候◆◁○、多元化的健康管理需求☆◁。上海【华润外滩瑞府】营销中心热线(售楼处预约看房热线)

约270°视野的贯穿更是锦上添花▷△=,主卧▷☆…▽、北向次卧●▽■◆■、厨房的约270°转角飘窗=•■▲-,让每个空间里的人都能平权地拥抱城市景致◆△▲○。

作为华润置地产品线的皇冠明珠□●○◇☆,
进门整面墙打造了玄关柜+☆-☆△◇■“S△◇”墙+零食柜设计…▼,「瑞系」自诞生便以钻石级选址标准划定豪宅基因☆…▲▽◆▽。搭配烤漆板饰面▪=…○▲-,实用性与质感满分◇◁。
GOA大象设计担纲建筑设计◆●△■;渡边智昭负责会所和架空层设计▪•□,他是2023 AD 100 中国最具影响力建筑和室内设计师-●★-●◁,代表作翠湖天地◇▼、汤臣一品★▽■;TROP操刀艺文景观设计▲▷■•▽■;室内由W=▲◁◇•.DESIGN无间设计▲■☆、李益中精琢▼▪□○●▪.…▪■-.▲□★◁-….
装修上配备国际一线品牌•◇,尤其厨房由嘉格纳领衔▼●▷,配备灶具◆★■△△-、吸油烟机◆◆△、洗碗机■▽◁、冰箱蒸烤箱◆•▷-。上海【华润外滩瑞府】营销中心热线(售楼处预约看房热线)

地块去年11月27日▼○▲▼△,华润置地以总价51▪▽▲■•▪.36亿元获取■▽☆□,成交楼面价92934元/平方米…•◁=,溢价率11◇△○◇◆.97%▲▪,地块中小套型占比40%○=▼,装修标准4000元/㎡•◆=…!
每一处花园皆以自然为画布=☆△•-□、生活为颜料▪★★,原生乔木与艺术草甸形成柔韧界面=▪,流线型步道如画笔游走其间■◁▽▷☆○,这不再只是社区绿地◁△◇○,而是一座生长中的露天艺术馆▼•◁…■△,让印象派的浪漫主义在每一天的晨曦暮霭中鲜活重生▽○○▷△。
而■▼△▲▼“大●▲▷●”还体现在公共空间的开阔■▽,岛台厨房▼☆=•、餐厅◁=、客厅与阳台动线流畅•-■◁▷,二胎共同玩耍也绰绰有余▼◆●■★。

上海【华润外滩瑞府】营销中心热线(售楼处预约看房热线)风雨连廊及印象派花园双重归家体系重新定义顶豪生活仪式□◆☆•◁…,社区大门以约50米长典雅精致市政延展面宣告不凡气度◁•-!先锋艺文迎宾区仪式感十足■◇▽-▲!这便是一场城市精英到生活艺术家的精神转场■◁。
上海【华润外滩瑞府】营销中心热线(售楼处预约看房热线年外滩扩容规划将通过地下连廊与滨江步道■•▷▼-◆,无缝串联百年金融街与现代CBD★★★。业主可享☆▷“晨间万国建筑群咖啡△★□■…、午后陆家嘴写字楼洽谈▲■▽=、日落滨江步道漫步◁☆▪…▷”的全球资本生活节奏◇•△◆☆;
室内外空间界限被温柔消弭○○,无论是社区内的精致园林★-■▽▼、活力场景▷▪=,还是远方的都市天际线●•…★,都成为生活中触手可及▲▪★•■□、瞬息变幻的风景☆-●。
社区核心以约3000㎡沉浸式中央公园重构自然与生活的边界▽☆□▪,这里不仅是满足全龄社交▽○、商务会客与儿童探索的多功能活力场域◆☆-○•◇,更以精心雕琢的轻度假美学◆▪,让每一次归家都成为步入度假胜地的仪式…▷••。当暮色浸染天际线▪…•★■=,漫步于绿意环抱的公园小径△=◇•▲,耳畔是潺潺水声与孩童欢笑▷…•-○,疲惫顷刻消融于草木芬芳与柔风暖光之中▽▼★▲◇。上海【华润外滩瑞府】营销中心热线(售楼处预约看房热线)

它不仅是空间的极致演绎◇△▽•△▪,更是身份与品位的象征▼●,一部真正意义上的△●○=“隐奢-▽=▽…”藏品◇▷▼-□,注定只为少数人私有■◇●。未来期待与远见者再度相逢••,共启外滩生活的崭新篇章…◁▪。上海【华润外滩瑞府】营销中心热线(售楼处预约看房热线)

显然▽▼•●▪,外滩瑞府户型深谙豪宅之道=○●△★=:◇▽▷☆★“大●◆=” 不是盲目堆砌面积-▪○,而是让每个空间都有足够的舒展度◇=•;□◁“平权●○△●▷•” 不是口号□•▼,而是通过面宽▲○=▼、采光…-●…☆、视野的均等分配=-▽,让家庭里的每一个人…◆,都能在空间里找到被尊重的舒适▲▪★。这正是华润置地深入研读豪宅客群需求后○◇•…,交出的完美答卷——在这里-▲▲★…=,大空间与平权生活=△●,从来不是选择题▽=○◇▼▪。
室内外空间界限被温柔消弭•▷--●…,无论是社区内的精致园林…◆、活力场景▽◇◁,还是远方的都市天际线▷•◁,都成为生活中触手可及★◇▷○□、瞬息变幻的风景□▲◁▽。



地块去年11月27日▽●◇▪,华润置地以总价51▪★□.36亿元获取▲▲▽○▽☆,成交楼面价92934元/平方米☆□△△▲,溢价率11□▪.97%●▽◇●◇,地块中小套型占比40%☆=▷,装修标准4000元/㎡==◆▪…!
社区核心以约3000㎡沉浸式中央公园重构自然与生活的边界●◇-★◇▼,这里不仅是满足全龄社交=▽-、商务会客与儿童探索的多功能活力场域◇▪,更以精心雕琢的轻度假美学•☆…=,让每一次归家都成为步入度假胜地的仪式▪…=•▽…。当暮色浸染天际线■▼,漫步于绿意环抱的公园小径▲▽▷•▼•,耳畔是潺潺水声与孩童欢笑□★,疲惫顷刻消融于草木芬芳与柔风暖光之中▼◆-。上海【华润外滩瑞府】营销中心热线(售楼处预约看房热线)
让人眼前一亮的是○…•▲,景观设计更以印象派艺术史诗为灵感▽☆◁▼…▲,独创六大主题花园△○=■▪,将传世名作解构为可游可赏的立体生态空间▷-▼★!有梵高的星空水苑•▲…=☆、莫奈的睡莲水湾▪=•★★、马奈的日光草坪△△-◁、塔贝尔的社交花园▪=▼☆▼、雷阿诺的缤纷花园以及调色板儿童乐园……上海【华润外滩瑞府】营销中心热线(售楼处预约看房热线)
虹口北外滩核心 「外滩瑞府」二批将推建面约120-330㎡无界大宅★▷▪!首开劲销24■★▲△.8亿▷▷!外滩1★▼.2公里○▪★!虹口内环内的外滩瑞府▼■-◁▼,就在这个☆■■▲◁“金九▼••○□★”◇☆■▪◁◇,外滩上演了一场现象级的热销=▷--。首开119套房源全部售罄▽○■▽□▷,去化率100%◆◇□▽•,劲销24★△▪□■.8亿+▪▼■。
这支曾塑造多个城市封面的大师团队■△☆,聚集在外滩瑞府■★…•●,共筑外滩新一代标杆住宅•◇…▽□。
上海【华润外滩瑞府】营销中心热线(售楼处预约看房热线上海十大城市更新片区▲△▽●,与黄浦外滩▷○★、老城厢等同为重点▼▼▷•▽。这里保留内环罕见的完整水系(宽15-20米○■▲○▲“江南小河道▷◆-●”)及国家级文保单位★●▽间爱游戏体育外滩瑞府(售楼处) 首页 - 外滩瑞府销售中心,未来滨水步行区将贯通▪-△-▽▲“一湾两半岛○…★●”▽◆◁☆△◇,百年里弄变身爵士乐演出空间与独立艺术画廊▲○,滨水市集的霓虹灯与爵士乐交织●•-□•,突破传统顶豪•◁◇■▽△“资源堆砌☆▷◁☆●▲”范式▷▪■•◁,形成▪○◆○“生活为体◇▪★◁•,音乐为魂■▲□”的海派艺文新场景=▽☆--。
传奇未完◇▷★□◆,美好待续▽▼◇◁▲★。外滩瑞府二批次新品即将载誉而来爱游戏体育◆○,更将首次揭幕项目的重磅藏品--建面约240㎡「摘星平墅」▼◆★▲。由全球知名设计师吴滨先生亲自主笔▲-,于外滩云端之上•□□•◁,为全球塔尖人物量身定制一席无界视野的■☆▼■◇…“摘星○◁”大宅○◇▲★。


尤为瞩目的是•□,建筑立面采用的大面积通透玻璃幕墙设计◁▽, 它如同一幅流动的巨幕画框▪•,不仅最大限度引光入室▽◆▪■▪,更实现了 ▲=◇“移步易景…▷▪、框景成画-◆★▽”的建筑美学▲…■◆。



从电梯厅开始-=…▽▷□,就是酒店式定制化设计▪…•★▽◇,弧形顶设计的电梯厅▼◁•…◆★,门牌上设计了玉石托盘…•●◆◇●,可以放置家庭独有的摆件★▼■▪,注重仪式感的同时更具高定私享趣味性△…◁!
社区打造了恒温泳池会所◇•○,以优雅流畅的线条融入天际视野=◆…,不仅是为业主提供专业级畅游体验的运动场所○…,更成为静享私密时光的水境上海【华润外滩瑞府】营销中心热线(售楼处预约看房热线)-▼▲●。
GOA大象设计担纲建筑设计☆▪□●;渡边智昭负责会所和架空层设计▲…▼•,他是2023 AD 100 中国最具影响力建筑和室内设计师□◁△□,代表作翠湖天地■◇•◇、汤臣一品◆▪☆;TROP操刀艺文景观设计▪◇•△;室内由W=•.DESIGN无间设计□□•▽、李益中精琢▼◆▷▲•.…▼…◁.▽▷▪□.
艺术生长带▲•:外滩源历保建筑内•○,先锋艺术展的光影穿透木质百叶窗▼○••▼,在老墙绘制当代图腾○◆◁-,让历史街区成为▪◇◇“流动的美学实验室△▼…◁★◇”●▲-•;
从深圳湾的…△★☆“春笋•◇▷▷△▽”旁到北京长安街畔■△,每一座瑞府都占据着核心城市最核心的地段•●•▷★■。

此次外滩瑞府落子外滩1公里核心圈▷▪•,正是华润对「战略稀缺性」的极致践行▷▽◁▽★□:非核心不选▼•==◆▪,非未来不立▲…▼☆◆★。

□☆▪:百年石库门的雕花檐角与陆家嘴玻璃幕墙互为映照▼▪-◇•▽,石库门的…○=“温度●▲◁▲▪•”与摩天楼的▽▲△▪△…“科技感▼=□”在此共生——上海中心的灯光倒映黄浦江时•◇•,外滩瑞府的窗前便展开一幅★●“古典砖石×未来光影△•□◆▽”的时空画卷○-;
首开即罄▲◁◆□▽▼,是市场对外滩瑞府作品价值的至高共识=•◇=•△,亦是外滩传世奢宅的华丽序章◇--◆•。
上海【华润外滩瑞府】营销中心热线(售楼处预约看房热线)同样近乎等面宽的卧室尺度…▲,让每个家庭成员都能拥有独立且舒适的休憩领地★▪▲●•★,三卧朝南的布局◁=,让阳光成为所有人的平等馈赠▲☆■•-★,没有谁要为…▼“主次☆▼▼●”牺牲采光权▲••-★☆。上海【华润外滩瑞府】营销中心热线(售楼处预约看房热线)
它不仅是空间的极致演绎○■▽,更是身份与品位的象征●=,一部真正意义上的◆▼△“隐奢▪•◆”藏品▪○,注定只为少数人私有▷▷=▼○=。未来期待与远见者再度相逢-☆…-◁◇,共启外滩生活的崭新篇章▷▽◆□•○。上海【华润外滩瑞府】营销中心热线(售楼处预约看房热线)

尤为瞩目的是☆▪…,建筑立面采用的大面积通透玻璃幕墙设计■○-○▽, 它如同一幅流动的巨幕画框★★,不仅最大限度引光入室◆☆,更实现了 ◁○◆…▪“移步易景▷●=◇△、框景成画=•-◇=◇”的建筑美学…★◆▲▪▼。




